
Q根據內政部統計數據顯示,二○一九年第一季,全台屋齡三十年以上的老屋,超過四一○萬戶,占房屋稅籍住宅類數量八七○.六三萬戶的四七%,顯示台灣近一半建築的結構安全備受嚴峻考驗,此外「二○六台南大地震」時,更震出「土壤液化」問題。想請教莊教授,台灣直至九二一地震之後,才嚴格要求耐震設計及施工規範,不過傳統的施作,始終難以規避承包商施工品質不一等造成的結構安全問題,現今是否有解?此外,在「美中貿易」及「反送中」的影響下,台商加速回流,香港移民也隨之增加,房產似有加溫趨勢,民眾又該從哪些面向,挑選能夠保障生命財產安全,傳承三代的百年好宅?A:每歷經大規模地震,倒蹋毀損的大樓、傷亡的人數,都一再提醒我們,建築結構內部「鋼筋混凝土結構」及「施工品質」,才是影響房屋安全的重要關鍵。老屋快速累增 都更刻不容緩根據內政部不動產資訊平台2019Q1數據顯示,全台屋齡超過三十年以上老屋已達四一○萬二八六戶,其中最大宗為新北市高達七十萬一○三一戶,其次為台北市六一萬一○三二戶,即使雙北推動危老、都更數字為全國之首,但相較整體數量與屋齡,仍有明顯差距。
另一方面,大台北盆地有二六.一%位處中、高潛勢區,甚至台北市政府、101大樓也都位於高潛勢區,至於北市五年內新屋則僅占三.○九%,可見「加速推動危老、都更」已是當務之急。台北、新北兩市近年建築物不斷往高層化、大型化、複合化發展,再加上台北盆地地形多變,而其中「山腳斷層」更跨越了金山、三芝、淡水、五股、泰山、新莊及樹林等各區,加上盆地效應及土壤液化問題,相較於其他城市亦面臨更加嚴峻之挑戰。■最急須房屋健檢的五大類危險建築:(1)土壤液化嚴重地區建築(2)海砂屋建築(3)順向坡地區建築(4)921、331或206地震損害較嚴重的建築
(5)921地震前興建之平面配置設計不佳的建築「防災型都更」把關不嚴 美意大打折扣過去在地震中發現倒塌之建築大多有施工品質不良的問題,例如柱鋼筋綁紮不良、樑柱接頭未綁紮鋼筋、箍筋間距過大且未做一三五度彎鉤等,皆是隱藏在建築內部的危險因子。但目前各地方政府推行之都更補助及獎勵制度,在最後查驗階段僅做「書面審查」,若監造單位沒有落實查驗,很容易發生像台南「維冠大樓」倒塌事件,為免不肖業者擅自修改設計圖或偷工減料情形再度上演,原政府加速推動的「防災型都更」更應該嚴格把關,以免原地重建了一棟新的不安全的建築。建築結構要安全,好的設計和好的施工缺一不可,其實,建築設計上的瑕疵很容易在施工前發現並及時修正,但往往是在混凝土包覆後查驗,建管人員就算要稽查也無從查起。目前政府積極推動的都市更新,有時也無法確保更新後的建築安全無虞,因此,建議應當推動「建築安全履歷」制度,依照「台灣建築安全履歷協會」推動之「建築安全履歷認證標章」,使建築的安全品質能夠透明及標準化,唯有這樣才能真正使「防災型都更」在地震來襲時,達到真正「防災」之效果。
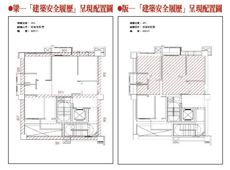
讓家家都有本「建築安全履歷」目前已有業者開始提供建築生產履歷,但履歷係由業者自行將各項工程的施工照片彙集而成,並非依照「建築安全履歷協會」的建築安全履歷標準紀錄,缺乏經由協會受訓認可的第三者結構專業公司驗證,所謂的建築生產履歷,僅能歸類為部分建築紀錄資料,購屋者是否能藉此獲得安全品質保障,仍有待商榷。按「建築安全履歷認證」系統,於施工過程不但會舉辦觀摩會,讓施工過程透明展現,此外,更為每一戶特別製作安全履歷,鉅細靡遺呈現各節點細節,大幅提升消費者對結構安全的信心。以Alfa Safe建案的建築安全履歷為例,依各樓層結構重點標記在平面圖位置,並附上施工過程鋼筋綁紮完成之相片,每層每戶之柱牆梁版鋼筋及混凝土施工紀錄彙整成冊,落實當層每戶建築安全履歷的品質紀錄,達到施工品質透明化「看得見、最安心」的目標。一、完整呈現之「建築安全履歷」平面圖規劃此一平面圖(見附圖)係將「柱牆梁版」結構安全重點併入建築履歷,目的是為了向拿到「建築安全履歷」的購屋者,完整呈現出房屋結構各部位,內部鋼筋構造及其重要性,也有助於業者向購屋者說明結構安全鋼筋施工品質的重要性。二、柱、牆呈現規劃
根據「建築安全履歷協會」規定:(1)「柱」屬主體結構,當地震來襲時承擔整棟建物穩固重責,因此結構安全需完全揭露,即每根柱都須拍照記錄。(2)「牆」屬次結構,其重點在於轉角應力集中處及牆開口之防裂與防漏,以確保百年建築之結構耐久性,但依個案的內外牆變化而有所不同,每戶之各類轉角與補強,至少須取一處呈現規劃,以確保各類綁紮之施工品質。(3)柱的呈現重點:整體柱綁紮完成紀錄、柱上部梁柱接頭箍筋的預留與上部柱圍束區之箍筋間距、柱中間之系統工法之柱一體箍定位綁紮及保護層墊塊的施作、柱下部的下圍束區箍筋間距定位綁紮及柱主筋續接位置等。(4)牆呈現重點:牆系統工法之聯合組成、L型牆轉角、T型牆轉角、牆端補強、牆開口端部之圍束及開口九十度轉角應力集中位置之斜筋補強等。三、梁、版結構安全重點依「建築安全履歷協會」規定:「梁」屬主體結構,其結構安全重點必須百分百揭露,因此必須拍照記錄;「版」屬次結構,其重點在於版筋間距與保護層墊塊施作之定位,以確保結構防裂防漏之耐久性,每戶至少須取一處呈現規劃,以確認綁紮重點之施工品質。梁的呈現重點:已綁紮完成之梁柱接頭箍筋數是否足夠且均佈、梁端圍束區之箍筋及下箍的定位綁紮、梁入柱之錨定長度、梁梁正交之增設箍筋補強、小梁入大梁的九十度彎鉤錨定綁紮方式等等。版呈現重點:下層版筋保護層墊塊之定位及間距、上下層版筋間隔工作筋或墊塊之定位及間距、版角隅補強等。
建案藉由第三方將「建築安全履歷認證」導入,進行建築品質的查核、檢驗、認證,戶戶針對綁筋、柱、牆、梁、板施工過程提供電子化影像紀錄,並由「建築安全履歷協會」認証的查驗工程師逐項追蹤紀錄把關,讓消費者擁有能夠住得安心、放心的幸福建築。十年磨一劍 建築安全品質新思維面對全新建案,建築工法也該與時俱進,好的「設計」搭配好的「施工」方式,才能確保新建築經得起大規模地震的考驗。從歷次地震倒塌建築斷裂處,經常能見到梁、柱鋼筋過密及鋼筋接合錨錠處未依照設計圖說長度定位綁紮,導致鋼筋無法與混凝土產生足夠的握裹力,因而沒辦法達到設計所需的抗震力。歸咎原因在於,大部分現場施作工人,未能確實理解「結構設計力學原理」,以至於設計與施工間產生落差。此外工人在綁好鋼筋後,若再被要求拆掉重綁,不僅會增加施工成本、影響施工品質,也會延誤工期,也因此常見少數業者將錯就錯,便宜行事的作法,讓居住者的生命財產安全,暴露在高風險的居住環境。為解決上述人為疏失、降低建築不安全因子,「戴雲發建築安全履歷團隊」十年磨一劍,研發出「戴雲發結構安全系統工法」,從一開始就將結構力學規劃設計、防裂防漏水的規劃設計、鋼筋彎折加工研究及現場施工技術相互整合,使結構鋼筋設計與施工方式完美的結合,以使結構設計者與施工人員對施工品質的標準達成共識,達到工期短、品質佳及成本合理的目標。「建築4.0-Alfa Safe耐震系統工法」 「4S」精神融入建築「戴雲發結構安全系統工法」以「系統化system」、「簡單化simple」、「效率化speed」及「標準化standard」,的「4S」基本精神融入建築。要符合結構安全標準,並非鋼筋數量夠、沒有偷料就能達成,過去傳統的鋼筋施工方法,工地師傅兩人一組,辛苦的相互協助綁紮鋼筋,若是鋼筋、彎鉤、搭接長度位置等錯置,其所能發揮的強度可能連一半都不到,不但事倍功半,更嚴重影響結構安全。「結構鋼筋系統化」施工則將柱牆箍配件化,工人只需做最簡單組裝,降低人為綁紮不良的因素,不但施工更快速,品質更確保、耐震強度更提升,亦更能確保建造的房屋更安全穩固。怎樣的建築才是優質好宅? ─好宅八大要素,由內到外建構好宅新標準一、建築造型外觀與環境品質(1)建築外觀美學、色彩、比例,耐看不易退流行,且建築之自明性高可以提供城市豐富意象。
(2)石材切割、磁磚規劃、塗料色彩規劃兼顧美學,並考慮磁磚、大理石不掉落、外牆防污染及白華問題設計。(3)融合四周環境、在地文化而不突兀,規劃退縮、融合、綠化、友善,與環境、街道景觀,並考量其高低、融合之綠美化景觀。(4)建築物、景觀之夜間燈光設計美化,點綴夜晚城市美景。二、舒適優雅的生活空間(1)建築坐向方位配置及主出口合理便利性、採光通風隔熱遮陽、通風換氣以保室內自然空氣品質。(2)空間尺度比例和諧優雅之美感品質及空間帶來聲、光、色、香、味、觸、法的喜悅、趣味、驚艷、感動人心的創意品質感受。(3)景觀端景、近景、高低、收放之規劃感受及日後管理維護之考量。(4)適當的規劃尺度及通用設計,車道通道、樓梯之寬度、坡度、動線設計。(5)浴廁、房間最小適當使用空間尺度及通用考量。(6)公設空間實用、親和友善易管理,空間秩序主從、動線分明並考量服務空間規劃。(7)室內往外看的穿透性、視野,室外往內看的隱私性需同時兼顧。(8)空間多元融合及日後百年建築使用可塑性擴展變更。三、百年建築結構安全(1)百年結構安全、防裂、防漏水壁癌、浴廁防漏水之創新科技工法及安全品質透明化的建築安全履歷呈現。(2)磁磚、大理石、格柵、門窗、立面、屋頂造型之材質及按裝創新工法與安全品質。(3)門窗之氣密性、水密性、防潮、抗風強度之標準及品質呈現。(4)施工工法耐久百年、細膩精緻,結構尺度優雅耐久。四、設備機電與時俱進(1)機電、水電、消防、瓦斯、弱電之管線儘可能不進結構體,並且兼顧百年建築使用之考量。(2)管線當層檢修更換之設計規劃。(3)系統化管線接管接合及易於日後維修、管線擴充、檢修更換之可能性。(4)智慧化生活居家安全監控、遠距醫療照顧。五、健康無毒安心環境(1)節能、保水、淨水系統(自來水及飲用水)避免地下污水滲透污染水源。(2)綠建材、綠裝修,健康空氣品質,防霉、防塵蟎、防PM 2.5之考量。(3)室內燈光設計兼具氣氛及閱讀視力保健。六、隔音隔臭居家舒適性(1)樓板、內外牆隔音之規劃設計。(2)管道水錘聲、機械房噪音之避免。(3)臭氣阻隔、當層排氣之規劃。(4)防污水雨水回堵和防漏水設計。七、實用貼心規劃設計(1)廚房、衛浴、陽台空間、鞋櫃、更衣間、儲藏室貼心之規劃設計。(2)熱水器強制排氣、預防瓦斯空燒警報系統…等安全之考量規劃。(3)廚餘桶、垃圾分類…等實用提升生活品質貼心設計。八、物業保全及維護管理一間好房子要內外兼具才能真正稱為好宅,人文上必須有良好社區管理,以提高住戶參與度,部分鄉鎮大樓房價便宜卻仍乏人問津,原因在於社區管理品質不良及空屋率偏高,無法凝聚社區意識,即使建築硬體設計美輪美奐,但軟體部份(管理、參與度)卻後天不良,仍不能稱之為好宅。所以好宅是從規劃設計施工到物業管理都要一併做好做到的建築,這也才可稱得上是一間讓大家買得放心、住得安心的百年好宅。


